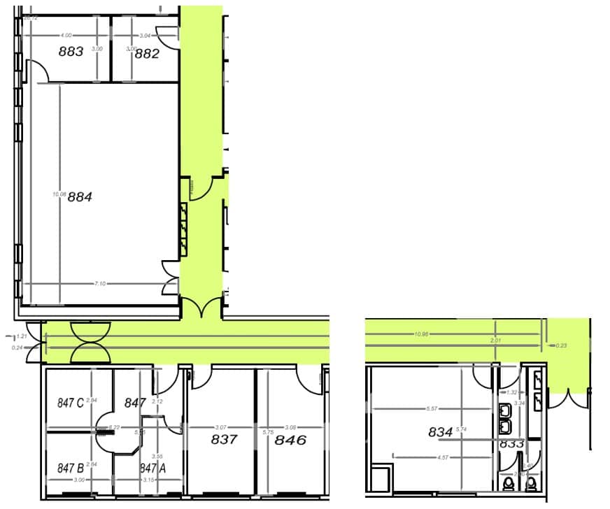
837

884

884


846

846

834

834

Start-up laboratories
LOCATION: Riom Industrial Site – Chambon Building
AREAS: 18 to 83 m²
DESCRIPTION
Options available:
-
Large laboratory 884: 71 m², to be fitted out, with adjoining 12 m² storage area 883 featuring temperature control. Equipped with AHU with recirculated air, soft flooring, provision for fume hoods and solvent cabinets; extraction system already in place, floor drain available. Compressed air and gas line connections possible.
-
Laboratories 837 and 846: 18 m² each, air-conditioned, no air treatment system.
-
Laboratory 834: 31 m², air-conditioned, no air treatment system.
EQUIPMENT
Available: laboratory benches, furniture, and equipment.
Offices: an administrative building is available on-site with offices for rent ranging from 10 to 20 m².
Fiber optic internet eligible (subscription by tenant).
ANNUAL RENT: €160 excl. VAT/m²/year
FIXED CHARGES: €60 excl. VAT/m²/year
VARIABLE CHARGES (electricity, gas, water): €80 excl. VAT/m²/year
INCLUDED IN FIXED CHARGES
Security
Fully enclosed and secure site: 24/7 security and video surveillance.
Annual inspection of emergency lighting and CO₂/water fire extinguishers.
Periodic inspection of electrical systems, fire detection system, emergency lighting units, and defibrillator.
Maintenance
Cleaning of common areas, landscaping maintenance, pest control, and household waste management.
Permanent on-site maintenance technician for air handling units, air conditioning, and heating.
Dedicated on-site team supporting tenant companies.
Other
Property tax and insurance included.
Additional Services Included
Promotion of your activities by the SMO communication team (presentation of your company on the Biopôle website biopole-clermont.com, printed materials, and social media support).
Shared dining area available.
Meeting rooms accessible upon reservation.
ACCESS & MOBILITY
Site with 100 parking spaces, including accessible parking (solar canopy project in progress).
Truck access road on-site.
AVAILABILITY: Immediate